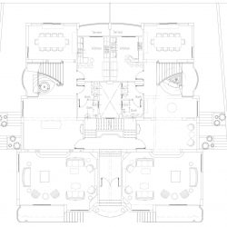
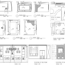
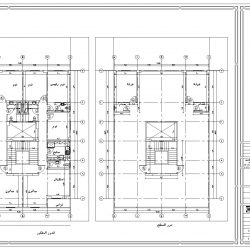
لوحات تنفيذية طبقا للتصميمات والاشتراطات المعتمدة وكذلك اللوحات التفصيلية لعرض التداخل بين اللوحات الانشائية واللوحات الالكتروميكانيك. حساب كميات المواد المطلوب شراؤها بكميات بنود الاعمال طبقا واللوحات التفصيلية وكذلك حساب تكاليف هذه المواد وصولا لإعداد الموازنة التفصيلية للمشروعات. الهندسة القيمية هي طريقة منهجية لتحسين “قيمة” المنتج أو الخدمة التي ينتجها المشروع و تخفيض التكاليف
● مشروع مركز بن حمران بجدة . ● مشروع أبراج الدخان الإدارية بالكويت
مع رتاج… وسع مجال رؤيتك و تواصل مع فريق العمل لتحصل علي رسومات تنفيذية وكميات حصر ومواصفات 01066944660 HTTPS://WA.ME/201066944660





























